Estimated Delivery: September 2027
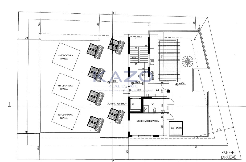
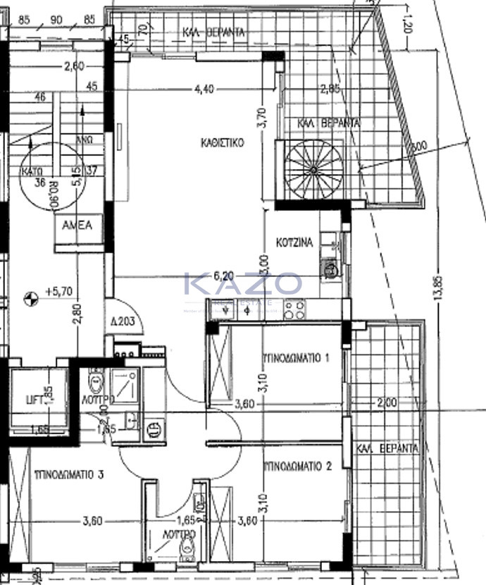
For sale is a modern, under-construction apartment offering a rare opportunity to own a top-floor home in Erimi. The property has a generous internal area of 96 square meters, providing a comfortable living environment. There are three well-sized bedrooms and two stylish bathrooms, designed for both relaxation and convenience. The elevator ensures easy access to the top floor, making this apartment an excellent option for families or individuals seeking comfort and modern amenities.
Enjoy breathtaking mountain and country views from your home, bringing a sense of peace and privacy to your daily life. With an excellent energy efficiency rating of A, this apartment is built to high standards and designed to save on utilities.
Erimi is a sought-after area known for its combination of serene natural landscapes and practical amenities. The community offers easy access to shopping, schools, and recreational spaces, all while being close to the highway for quick connections to neighboring towns. The lifestyle here is peaceful, yet everything you need is nearby.
This home, due for completion in 2027, is an ideal choice for those who value quality and location. For more details or to arrange a viewing, contact Kazo Real Estate.
All properties displayed at www.kazo.com.cy are subject to availability. Kazo Real Estates makes no warranties, undertakings or representations with respect to the content of the website (such as accuracy, quality, comprehensiveness etc of such content) and no liability or responsibility of any kind whatsoever is accepted by Kazo Real Estates concerning the information contained in this website.