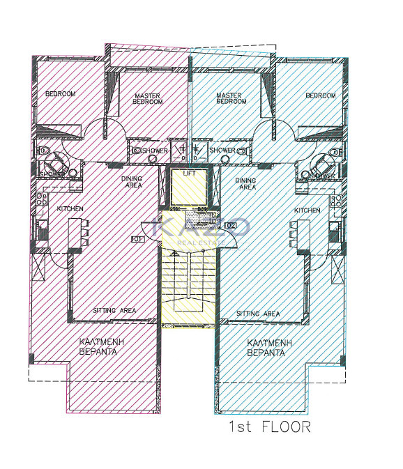
For sale: Modern two-bedroom apartment under construction in the sought-after area of Agia Fyla, Ekali. This bright and stylish home offers a total internal space of 77.5 m² and is conveniently set on the first floor of a three-story building with elevator access. The apartment enjoys an open-plan layout with large windows, bringing in natural light and offering pleasant city views.
Situated in a well-designed gated complex, residents benefit from added security and peace of mind. The property achieves energy efficiency class A, ensuring comfort and lower running costs for years to come. Built to the highest contemporary standards in 2026, it combines modern architecture with practical living spaces.
Agia Fyla, Ekali is a growing residential neighborhood known for its quiet atmosphere and family-friendly environment. The area offers easy access to the highway for quick commutes and is close to all needed amenities, including schools, shops, supermarkets, and cafes. Parks and green spaces add to the local charm.
This property is exclusively advertised by Kazo Real Estate. Whether you are a first-time buyer or seeking an investment in a prime location, this apartment is an excellent opportunity. Contact us today for more information or to arrange a viewing.
All properties displayed at www.kazo.com.cy are subject to availability. Kazo Real Estates makes no warranties, undertakings or representations with respect to the content of the website (such as accuracy, quality, comprehensiveness etc of such content) and no liability or responsibility of any kind whatsoever is accepted by Kazo Real Estates concerning the information contained in this website.