
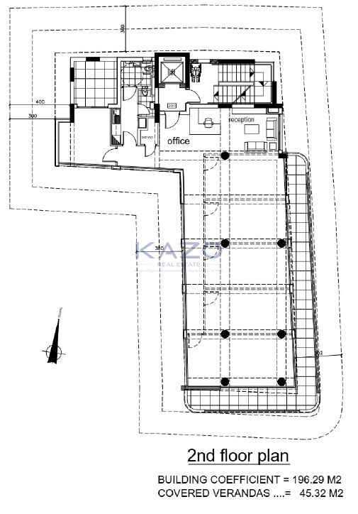
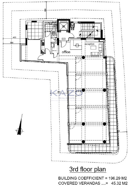
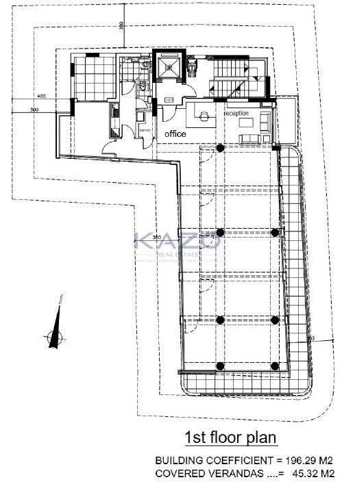
For sale is a modern office space under construction in the sought-after area of Agios Ioannis. This spacious office covers 177 square meters of internal area and is situated on the first floor of a five-story building, which features a convenient elevator for easy access. The layout includes one well-appointed bathroom, making it an excellent choice for a professional workspace.
Designed to meet today's needs, the office promises energy efficiency class A, ensuring a comfortable work environment with lower running costs. Enjoy bright, open interiors with contemporary finishes throughout, ideal for creating a productive atmosphere. Large windows offer pleasant city views and allow plenty of natural light.
Agios Ioannis is a lively and developing district known for its accessibility and range of amenities. Here you will find shops, cafes, banks, and public transport options within close reach. Its central location offers quick routes to other parts of the city and convenient links to main roads.
Construction is scheduled for completion in 2027, giving you the opportunity to customize your workspace to suit your business needs. This property is brought to you by Kazo Real Estate, your trusted partner for quality office solutions in Agios Ioannis.
All properties displayed at www.kazo.com.cy are subject to availability. Kazo Real Estates makes no warranties, undertakings or representations with respect to the content of the website (such as accuracy, quality, comprehensiveness etc of such content) and no liability or responsibility of any kind whatsoever is accepted by Kazo Real Estates concerning the information contained in this website.