Modern 412m2 Office on Fourth Floor City Center

City Center - Agia Triada, Limassol
€3,300,000+VAT
29050

Overview

  • Toilets 4
  • Floor 4
  • Floors 7
  • Parking spaces 7
  • Year of construction 2028
  • Energy efficiency rating A+
  • Status Under construction
  • Covered 412 m²
  • Covered veranda 38 m²
  • Plot 568 m²

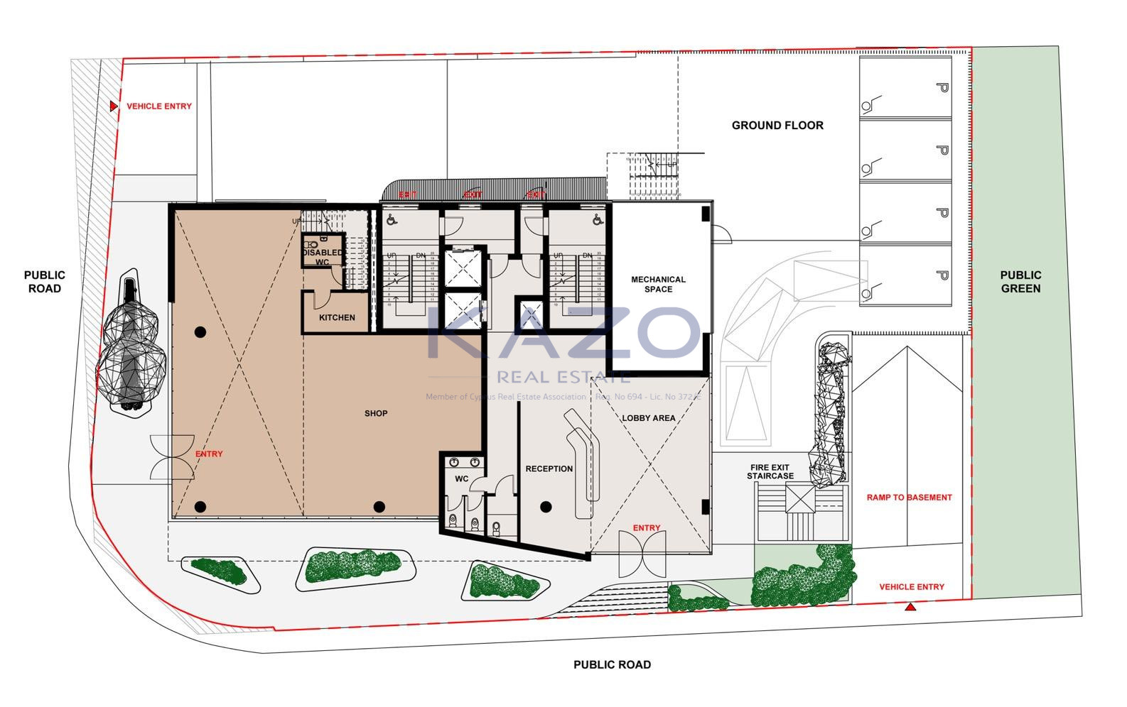
GROUND FLOOR

• Lobby with double hight ceiling
• Conference room
• Retail space with mezzanine
• 4 parking spaces
• Mechanical room

BASEMENT

• 3-level underground
car parking
• 68 spaces

1st -7th Floor

• Open plan office space with
bathrooms and kitchens


For sale: An exceptional office space under construction, offering a total internal area of 372 m² on the ground floor with convenient elevator access. This modern office is designed to meet contemporary business needs, featuring a central air conditioning system and energy efficiency rated A+, ensuring both comfort and sustainability.

Located in the heart of City Center - Agia Triada, this office provides an ideal business address. The area is known for its lively atmosphere, with easy access to major amenities such as banks, restaurants, shops, and public transport. Its proximity to the highway makes commuting seamless and efficient, while the panoramic views add an inspiring touch to the work environment.

With a planned completion in 2028, the building will offer the latest in construction standards and design aesthetics, ensuring a professional and impressive workspace. This is a rare opportunity to secure premium office space in one of the city's most desirable business districts.

Contact Kazo Real Estate today to find out more about this outstanding investment opportunity in City Center - Agia Triada.

Facilities

  • Aircondition, Central system
  • Heating, Central
  • Parking, Underground
  • Elevator
  • Solar photovoltaic panels

Features

  • Reception
  • Main road
  • Double glazing
  • Near public transport
  • Luxury specifications
  • Corner
  • Easy access to main roads
  • Easy access to highway
  • Fire detector
  • Thermal insulation
  • Entrance gate, automated
  • Earthquake-resistant structure
  • Near amenities
  • Near bus route
  • Fiber optics
  • Conference hall
  • Panoramic view
  • Business facilities
  • Automation system
  • Server room
  • Kitchen
  • Electric car charger (provision)
  • Floor-to-ceiling windows
  • Entrance hall
  • Fireproof entrance doors
  • Ventilation system

Distances

  • Amenities 200 m
  • Sea 600 m
  • Public transport 10 m
  • Schools 30 m

All properties displayed at www.kazo.com.cy are subject to availability. Kazo Real Estates makes no warranties, undertakings or representations with respect to the content of the website (such as accuracy, quality, comprehensiveness etc of such content) and no liability or responsibility of any kind whatsoever is accepted by Kazo Real Estates concerning the information contained in this website.

Similar properties

COMMERCIAL
RESALE
30184
€3,150,000+VAT

Spacious Office for Sale in Vibrant City Center

City Center - Agia Triada, Limassol
  • 267 m²
NEW LISTING
COMMERCIAL
29119
€3,500,000

Spacious Office for Sale in Central Polemidia Kato

Kato, Polemidia, Limassol
  • 514 m²
29049
€3,700,000+VAT

Modern Top Floor Office in Busy Central Area

City Center - Agia Triada, Limassol
  • 472 m²